Hindustan School Of Architecture cover image
Location
Coimbatore
Client
Hindustan group of schools, Cbe
Year of completion
2020
Built-up area
90000 Sq.Ft
Design team
Vijaykumar,Sudhaman, Anitha, Hari karthikvel
Contractor
Sri Maha laxmi constructions
Site engineer
Varun
Structural consultant
Rays consulting engineers
Electrical consultant
Alfa associates
Plumbing consultant
Alfa associates
Gallery
Design Concept

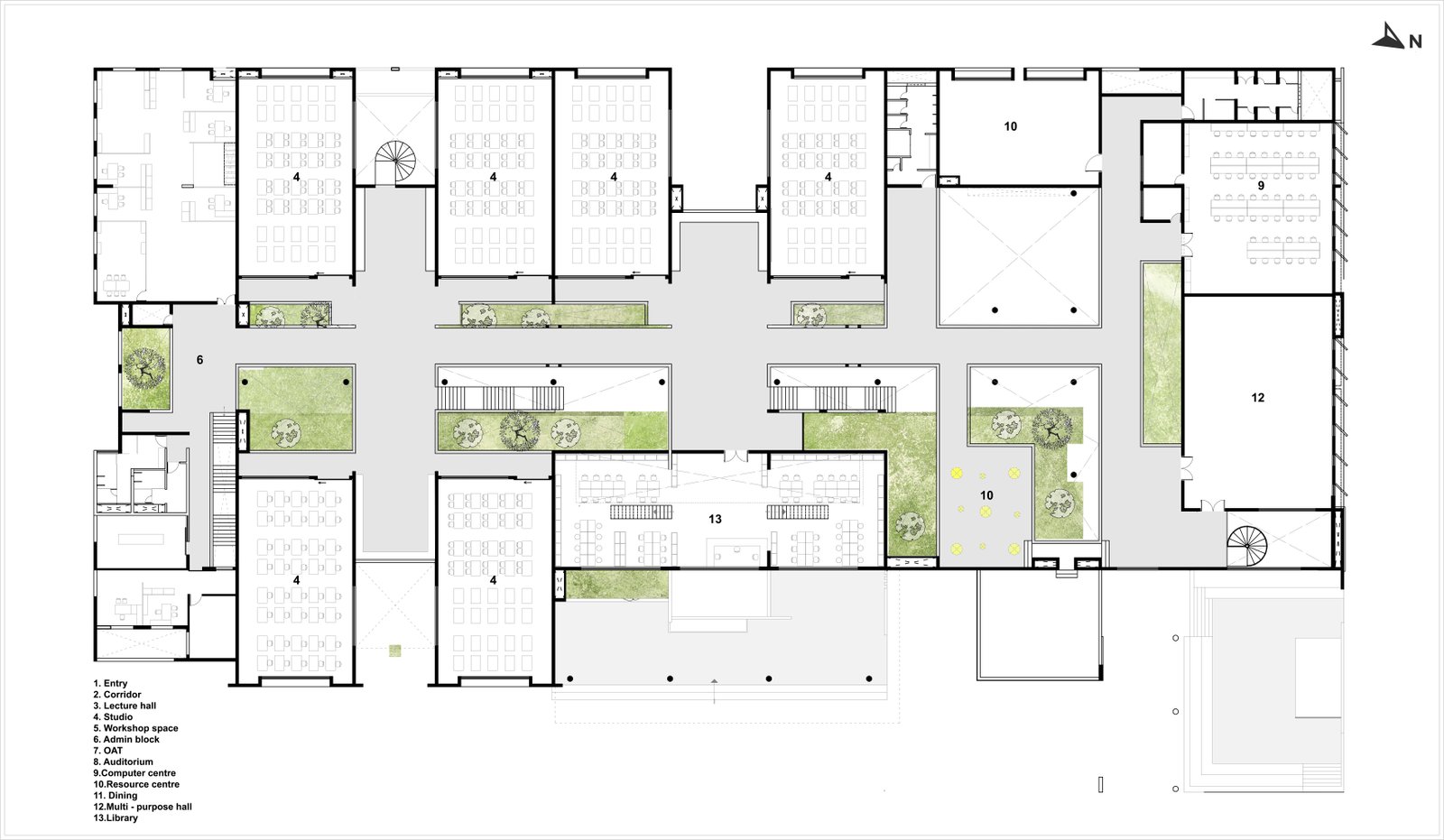
Located in Coimbatore, Hindustan school of architecture is conceived as a living ecosystem where young designers can create, study, and collaborate seamlessly. The architectural language focuses on spatial hierarchy, environmental connectivity, and the unique, often informal needs of design students.

Spatial Organization & Circulation

The layout is centred around a primary spine that serves as both a physical divider and a unifying connector for the various program zones.

Zoning: The building is anchored by two distinct poles: the administrative wing at one end and communal hubs - including the canteen, seminar halls, and a multipurpose hall - at the other.

Studio Modules: Learning spaces are arranged in pairs, each sharing an outdoor courtyard. These courts accommodate the natural "spillage" of architectural work, providing room for model-making and large-scale creative activities.

The central library, positioned on the first floor, acts as the building's pivot point. Though it physically separates certain blocks, it serves as a bridge that unifies the institution. To enhance the sense of openness, the library features a mezzanine level, creating a voluminous, multi-dimensional space for research and contemplation.

Environmental & Sensory Experience

The design emphasizes a constant connection between the interior and the landscape through varying scales of volume:

Buffer Zones: Internal courtyards act as acoustic and visual buffers between the focused environment of the classrooms and the movement of the corridors.

Climate Control: These courtyards utilize skylights to lit the interiors with natural light and promote passive ventilation.

Materiality: Features like Jaali brick walls and strategically placed openings allow users to maintain a visual link to the outside world as they move through the building.

This design strategy ensures that the institution functions not just as a facility, but as a cohesive system that mirrors the interactive and fluid nature of architectural education.

Design Concept
×