Basker And Shanthi Residence cover image
Location
Trichy
Client
Basker
Year of completion
2022
Built-up area
3000 Sq.Ft
Site area
2500 Sq.Ft
Design team
Vijaykumar, Ashok, Adharsh, Shanthi, Anitha,
Site engineer
Baskar & Er.Dixon
Structural consultant
Ragavendran
Gallery
Design Concept

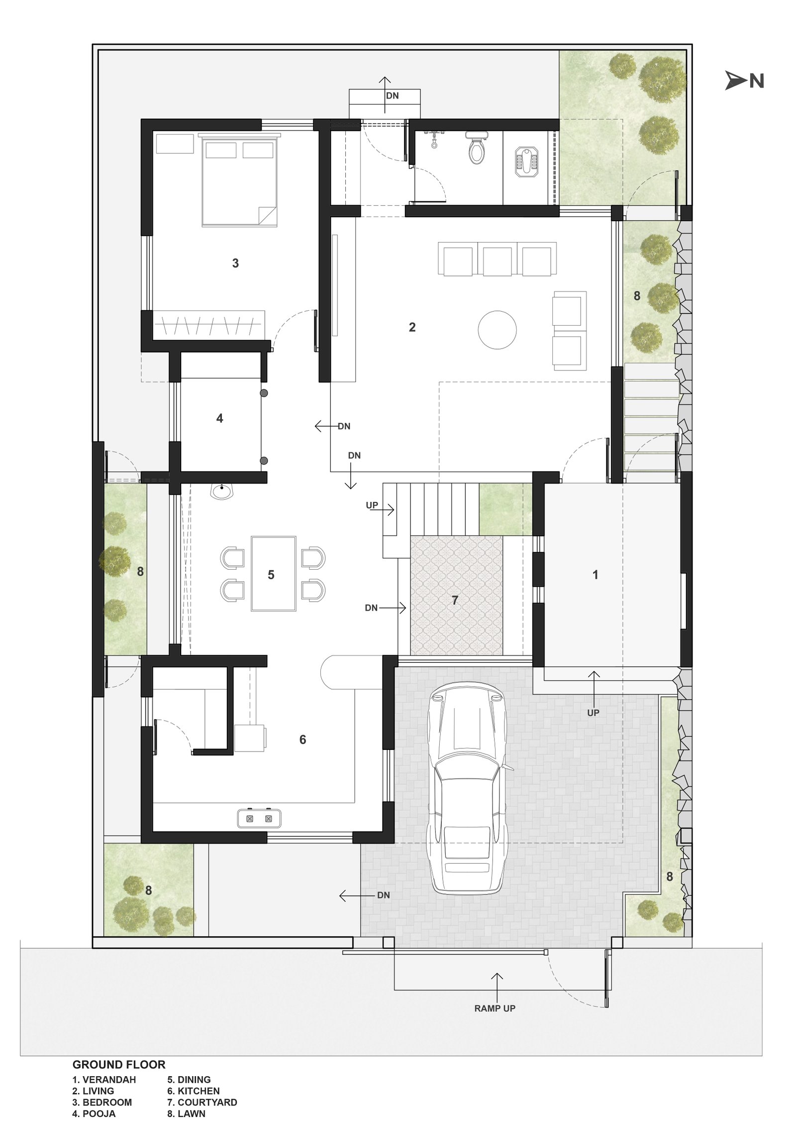
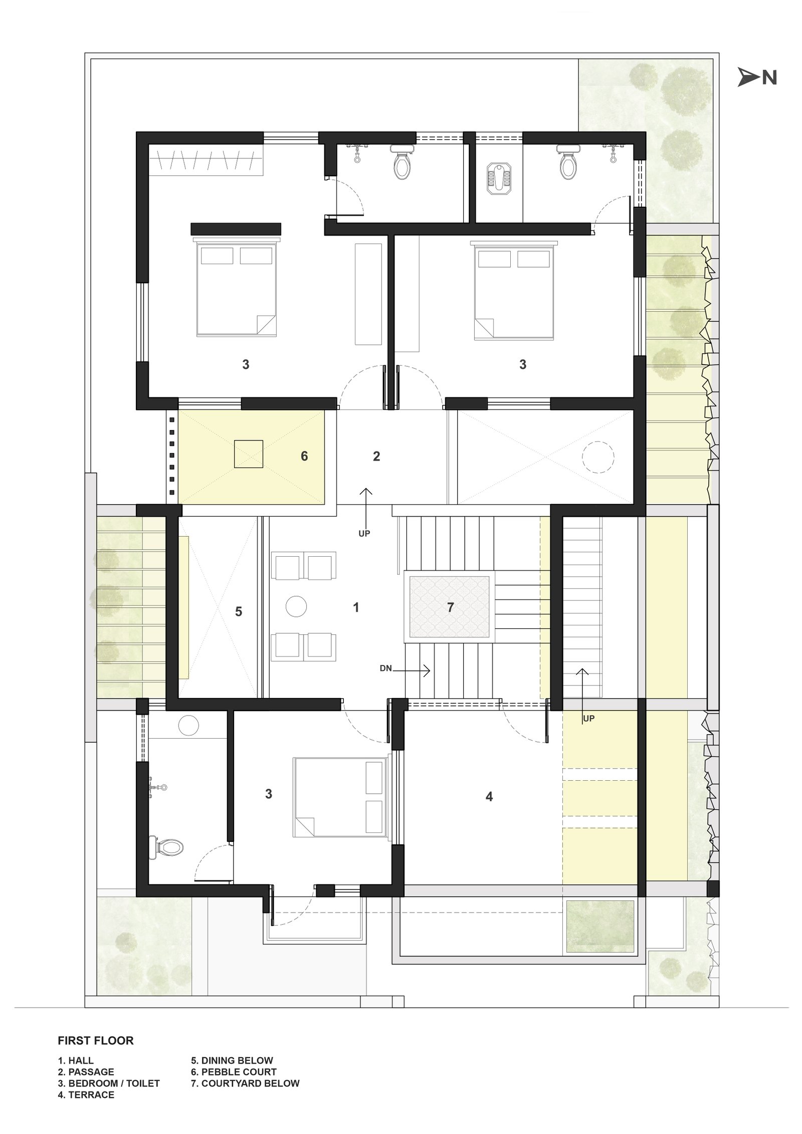
The design focuses on a contemporary, four-bedroom home for a joint family with people of various age groups. It offers private zones for every individual while providing ample space for large family gatherings.

The main entrance opens into a double-height space, establishing a direct visual connection between the upper-floor rooms and to the ground floor. The open-plan ensures better connectivity between areas; instead of walls to subdivide space, the home utilizes split levels to create a natural hierarchy of space without sacrificing the visual flow.

At the heart of the home, a central courtyard and staircase bind the entire residence together. This area features a sunken living room and an exposed brick wall that serves as the home's primary focal point. A skylight placed directly above the staircase highlights the texture of the brickwork and the acts as the crux of the house.

The material palette consists predominantly of exposed brick and raw concrete. To enhance the living environment, two landscaped courtyards accompanied by skylights significantly improves the character of the space.

Design Concept
×